The best dream tiny home plans
With years of experience in designing and building over 100 custom tiny homes, we know what works and more importantly, what doesn't. Every plan we create is thoughtfully crafted with functionality, style, and simplicity in mind, giving you a solid foundation to build the home of your dreams.
We don’t just provide plans—we offer expertise. Our designs are created by us and our experienced team of architects and builders, ensuring they’re both practical and beautiful.
Plus, each plan comes with detailed materials lists, making the building process easier and more affordable. When you choose us, you’re not just getting a plan—you’re joining a community dedicated to living simply, sustainably, and with purpose that are here to support you along your journey.





















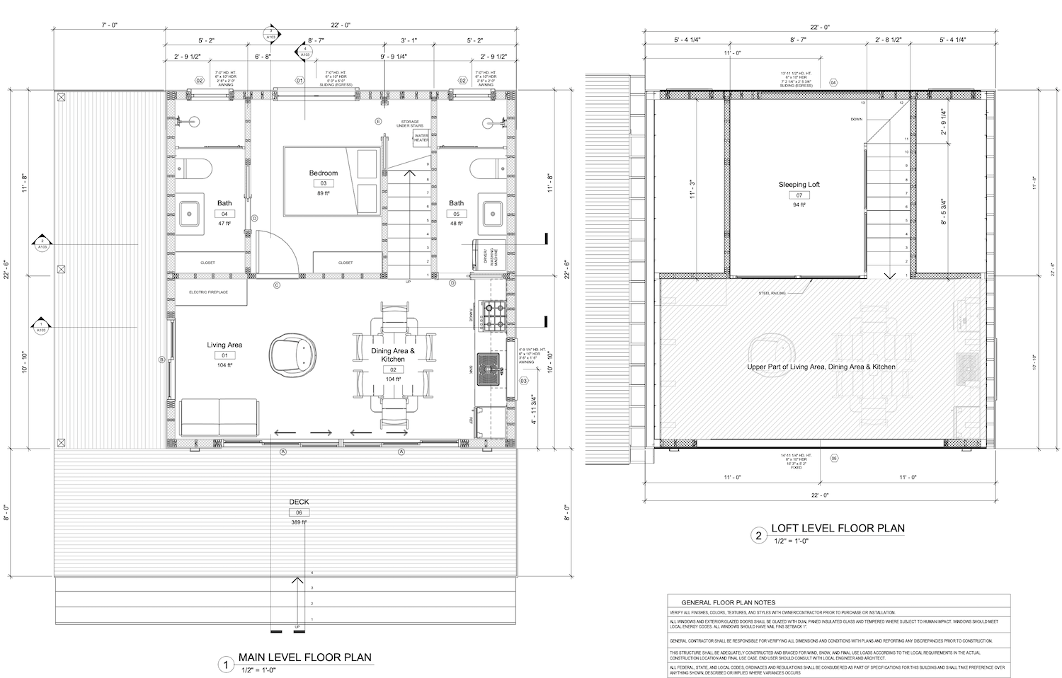
Ironwood Cabin
Welcome to the Ironwood Cabin, where timeless craftsmanship meets modern design. Featuring a bold dark exterior, warm wood accents, and expansive windows, this cabin is designed for those who seek a refined connection to nature. Whether nestled in a forest, perched by a mountainside, or tucked away in your backyard, the Ironwood Cabin offers a harmonious blend of elegance, durability, and cozy charm.
Highlight Specs:
- ~484 sq ft. (+ ~100 sqft loft)
- 22'6" L x 22' W x ~19' H
- 2 Bedrooms (including 1 loft)
- 2 Bathroom
- Sleeps up to 5
- Large Covered Deck
Take your dream from
Plans to Reality

Plans

Reality
Top Home Types
Latest Stories
3 Best Deck Post Anchors for Backyard Projects: Concrete, Screw-In & Hidden Bases
This guide compares three anchors that meet those rules, showing how they stack up on strength, price, and DIY-friendliness. Pick the option that matches your soil, budget, and style—and start building with confidence.
7 Best Timber Frame Kits for Tiny Homes Under 500 Sq Ft
We compared dozens of sub-500-square-foot options on structural strength, true all-in cost, and DIY friendliness. The seven clear winners below give you a solid, permit-friendly start without blowing your budget or your back.
Why Your Roofer Recommends Specific Metal Alloys?
Having a clear understanding of the molecular makeup of such materials enables homeowners to make informed decisions about long-term security. A high-end metal roof serves as a solid protective layer when selected for the local climate.







































































